Flat Open Side Hopper
Flat Open Side Hopper
A flat open side hopper constructed of steel for long term use in the harsh environment of material handling.
An open sided design allows the users to load and unload from 3 sides. The unit is easily attachable to a forklift by utilizing the fork pockets. Once in position the hopper may be tilted to unload by a simple pull of the cable. This easy unloadable design maximizes productivity by eliminating the manual unloading labor.
Pricing
| Flat Open Side - Hopper | ||||
|---|---|---|---|---|
| Model Number | Deck Option | Size (LxWxH) | Shipping Weight | Price |
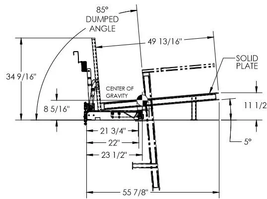
| DS-H-FBOD-4896-2 | Open | 97-1/2" x 55-7/8" x 34-9/16" | 470 | $1,352 |
| DS-H-FBSD-4896-2 | Solid | 97-1/2" x 55-7/8" x 34-9/16" | 590 | $1,494 |
| All dimensions are in inches | ||||
Features
Standard Features:
2000 uniform capacity
Large capacity for heavy loads
Sizable surface area for long and wide items
7 x 2 usable fork pocket width/height [in]
21-5/8” fork pockect center [in]
85 degree dump angle
5 degree rested deck angle
48” pull cable length
Blue enamel finish
Note: All products should be inspected frequently to insure safe operation. Final testing and inspection left to end user after final assembly has been completed.
Options
No options available for this product
Parts
Please call 1-888-802-3651 for replacement parts
Documentation / Videos
No documentation or videos available for this product
CALL US AT (888)-802-3651 OR CLICK BUTTON FOR A FREIGHT QUOTE
WHEN YOU PURCHASE A HOPPER FROM DIVERSE SUPPLY, YOU ARE SIMULTANEOUSLY AGREEING THAT DIVERSE SUPPLY IS NOT LIABLE FOR ANY INJURY OR PROPERTY DAMAGE RELATED TO THE USE OF THE HOPPER.





